Perceel in La Cerquilla met ontwerp van Diego Tobal en adembenemend uitzicht
La Cerquilla, Nueva Andalucia
€ 6.900.000- 3.500 m²Perceel
Verkoopprijs
€ 5.500.000
STEDENBOUWKUNDIG PERCEEL NAAST PUERTO BANUS! Het bevindt zich in een geconsolideerde, gerenommeerde urbanisatie.
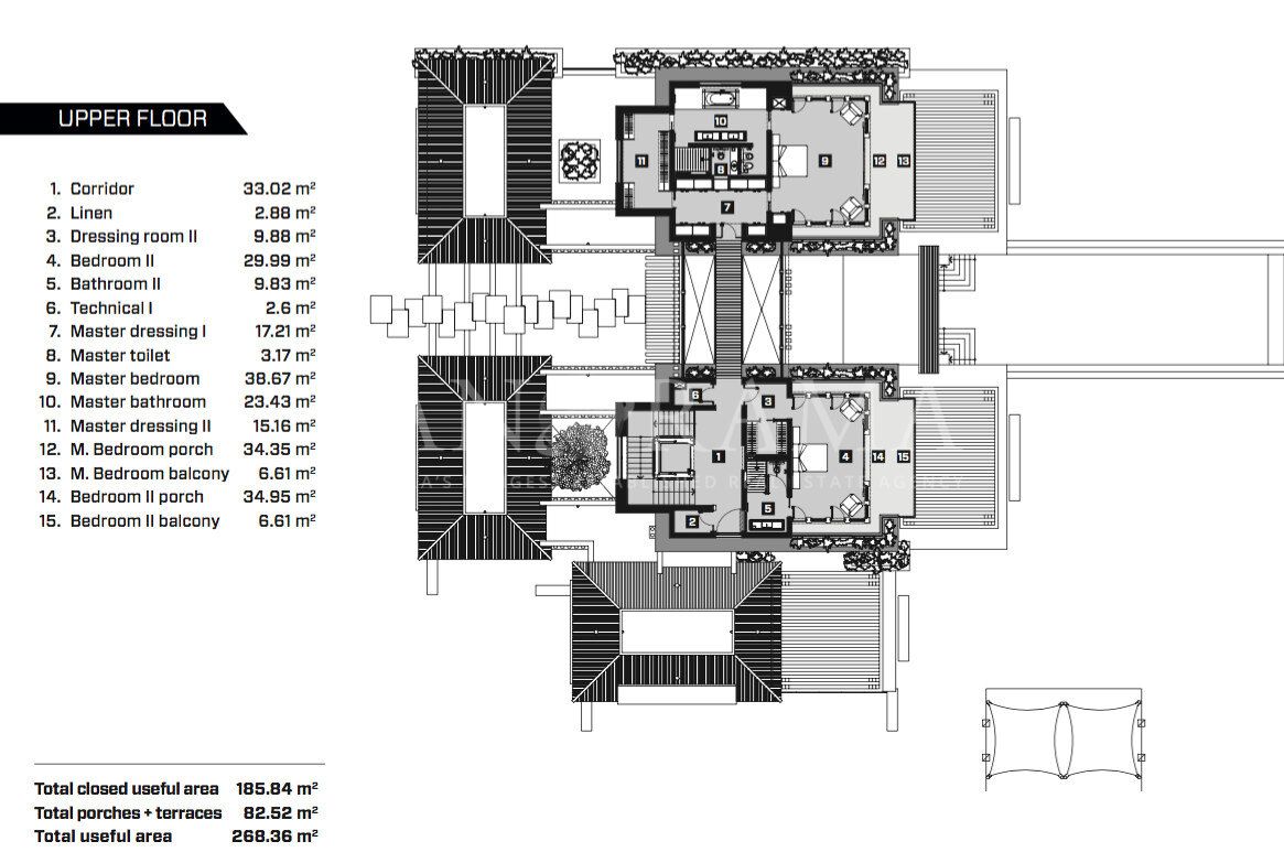
Er is een project met vergunning voor een villa van 669m2 plus kelders en terrassen, met een bebouwde oppervlakte van 679m2 + 125m2 aan geplande pergola’s.
Dit geconsolideerde stedelijke terrein is gekwalificeerd als:
UE-5 met een minimale perceelgrootte van 2.000m2
Bouwvolume – 20%.
Bezetting – 20%.
Nueva Andalucía biedt luxe villa’s, golfbanen en exclusieve voorzieningen, dicht bij de glamour van Puerto Banús.

La Cerquilla, Nueva Andalucia
€ 6.900.000La Cerquilla, Nueva Andalucia
€ 3.900.000